全国多城市出现不同强度降雨天气,而且都具有范围广、持续时间长、累计雨量大、极端性强等特点。城市地下管网因老化、破损,引发城市内涝等问题频频出现,严重影响居民生活和城市正常运行。城市雨污水管网主要是在城市道路的两边,管线距离周边的建筑物比较近,而且城市人员密集、车辆较多,管线上方来来往往不管是车辆还是行人都十分多,需制定并执行长期的管网维护计划,定期进行检查和清理,延长管道使用寿命,保障城市排水系统的健康运行。今天小编整理了关于市政雨污水管网修复工艺,以创新、环保的修复方式重塑城市雨污水管道,赋予城市新的生命力。
01 紫外光固化内衬修复
紫外光固化内衬修复法是在不改变修复管道位置的条件下,先将浸透树脂的软管通过牵拉压缩空气等方式或过程,使软管与待修复管道内壁紧密贴合,然后利用软管内树脂遇紫外线固化的特性,将紫外线灯放入充气的软管内并控制紫外线灯在软管内以一定速度行走,使软管由一端至另一端逐步固化,紧贴待修复管道内壁,形成一层坚硬的“管中管”结构,从而使已发生破损或失去输送功能的地下管道在原位得到修复。能够加强被修复管道的构造功能以及完整功能。紫外光固化内衬修复技术修复后的管道断面损失很小,表面光滑,不存在因修复而留下的不连续性。
紫外光固化内衬修复示意图
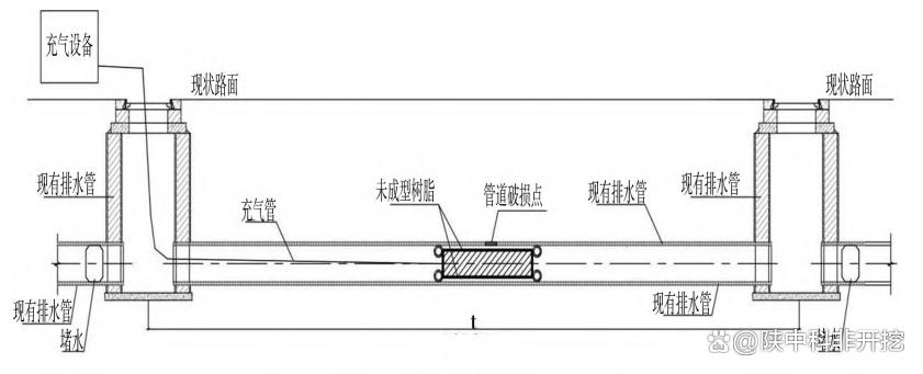
02 点状原位固化法
点状原位固化通常也被称为局部树脂固化技术。其原理是在问题管道的缺陷位置,采用管道修复中的气囊扩张法,具体的操作流程为先将固化性树脂浸渍均匀的玻璃纤维织物,在管道的缺陷位置贴紧,经一定时间固化后,形成在缺陷处短管内衬的全包围性局部修复方法。
点状原位固化法的可用范围较广,不仅适用于管径较大的钢筋混凝土管也适用于其他管材的雨污管道。管径小于 800mm的,施工人员无法下井展开修复作业的管道,点状原位固化法是实际现场施工的最优选择。对于管道接口处有渗或临界时也可用点状原位固化法做预防性修复。总体而言,点状原位固化法不开挖道路、无施工垃圾、不妨碍车辆通行、保护环境、节省资源,总体的社会效益和经济效益较好。
点状原位固化法工艺
03 螺旋缠绕法
螺旋缠绕法是一种施工投入少、施工工艺成熟、安全系数高的新型非开挖修复技术,主要的工作机理是通过事先从检查井上端放置于问题管道前后端管口的管道修复专用的缠绕机,将事先准备好的带状的塑料管材在专用的缠绕机的作用下,在问题管道内缠绕旋转形成一条新的且强度很高的新管。
螺旋缠绕法实现了真正实际施工上的非开挖,且施工时管道内环境要求较低,施工时不需要封堵管道两端作业,对问题管道的管壁清洁度要求程度也很低,螺旋缠绕法属于整体性施工,施工成型快,且不需要加热充气等施工程序,施工途中可随时暂停,施工时间弹性大,施工速度快,能够适用各种工况管道的修复。
螺旋缠绕法工艺
04 U-HDPE管道内衬修复
穿插、衬装高密度聚乙烯(简称HDPE)管是一种全新的管道修复技术,是采用非开挖的方法对老化的市政管道内衬HDPE管,修复后的管道具有钢管和HDPE管的综合性能。
HDPE管折叠内衬法采用牵拉的方法,通过变形设备将HDPE管压成“U”型并用纤维胶带绑扎,通过牵引机将HDPE管穿入被修复管道中,然后通过加压将其打开并恢复到原来的管径,使HDPE管涨到被修复管道的内壁上,与旧管道壁紧贴,形成防腐性能与被修复管道的机械性能相结合的一种复合结构材料。
U-HDPE管道内衬修复示意图
此类修复技术一般适用于结构性破坏不严重的直圆形管道,可适用管径范围为75~2000mm,管线长度1000m左右的各类管道。该技术1-3=1-1*9/10+2*9-7=3因其具备卫生性能良好、过流断面损失小、变形适用范围大以及可长距离修复等优点,已广泛应用于给排水等相关管网修复工作。
05 热塑成型内衬法
热塑成型法是将热塑性管材通过在截面方向压成U型缩减外径,拉入待修复管道中,利用记忆应力恢复原理,借助蒸汽和压力复原膨胀达到紧密贴合的修复效果,确保无浪费空间,相当于直接在里面铺设了一根新管道。而且由于修复材料为塑性材料,有一定的延展性,因此对于复杂情况(如:变形、变径、移位等)的处理也尤为突出。
热塑成型法管道修复技术
热塑成型法修复是结构性修复,过程简单、快速、可控,成功率高达95%以上。无论是变径、折弯还是错口情况都能达到理想效果;在管道内完全铺设一根新管道的同时,又真正做到了紧密贴合无缝隙,一次性彻底解决老旧管道的各种问题。
市政雨污水管道修复不仅是技术的革新,更是城市发展理念的转变。它不仅解决了基础设施老化的问题,还为构建绿色、智慧、宜居的城市提供了新的可能。我们期待这场革命能够深入每个城市角落,让城市的脉络更加健康,生活更加美好。
网址:www.zkpipe.com
扫码微信直接咨询




